Nous comprenons le nord... Nous construisons le nord.


Aubé (Hébergement travailleurs)

image

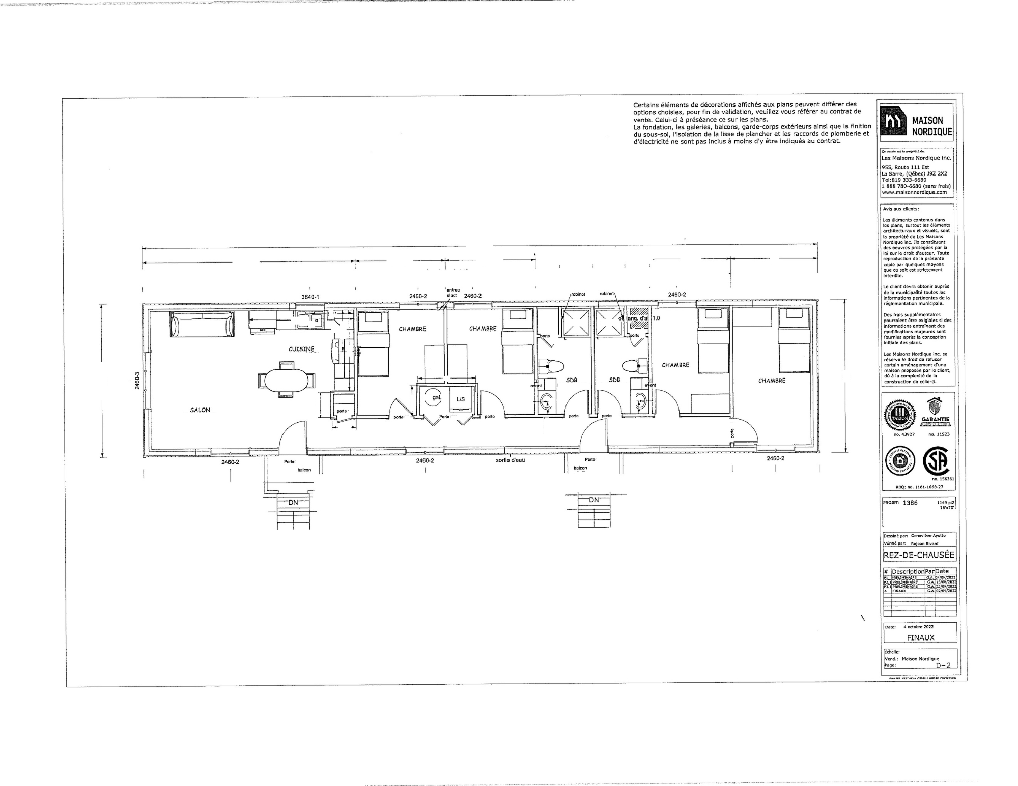
16’x70’

Pensé pour offrir confort et efficacité, ce modèle unimodulaire est parfait pour les sites de travail. Construit selon les mêmes standards qu'une maison résidentielle, il se distingue par sa rapidité d’installation : aucune fondation requise, il peut être installé sur des chandelles. Idéal pour les milieux éloignés ou temporaires, ce module comprend deux salles de bain complètes, ce qui en fait une option fonctionnelle pour les équipes de travail.

Inclus:

  • 4 chambres 
  • 2 salle de bain incluant douche, robinetterie, toilette, etc.
  • Cuisine très bien éclairée avec armoires, évier, robinetterie et hotte
  • Isolation exceptionnelle au toit de R-62,79 et R-39,6 aux murs
  • Et encore bien plus

 



image
©2026 Maison Nordique préfabriquer et usinée en Abitibi-Témiscamingue • Contactez-nous • Catégories • Plan du site • English • Politique de confidentialité • Propulsé par GNAK.CA
Retour
Partager